Nowe mieszkanie 3 pok. , balkon, komórka, bez PCC!

ul. Łężyca-Ciesielska, Zielona Góra, Lubuskie

633 000 zł

55,7 m2 - 11364,45 PLN/m2
108019941.jpg
108020172.jpg
108019659.jpg
108019689.jpg
108020041.jpg
108020114.jpg
108019755.jpg
108020222.jpg
108020259.jpg
108020952.jpg
108021043.jpg
108020735.jpg
108021156.jpg
108021218.jpg
108021254.jpg
108021321.jpg
108020817.jpg

Numer oferty

111/14248/OMS

3
Pokoje
1
Łazienka
brak
Garaż
55,7 m2
Powierzchnia
2024
Rok budowy

Opis nieruchomości

Przedstawiam Państwu na sprzedaż nowe, 3-pokojowe mieszkanie o powierzchni 55,70 m², zlokalizowane w nowoczesnym apartamentowcu przy ul. Łężyca-Ciesielska w Zielonej Górze – zaledwie 10 minut autem do centrum miasta! To idealna propozycja dla osób szukających funkcjonalnej, komfortowej przestrzeni, gotowej do zamieszkania bez dodatkowych inwestycji.

Mieszkanie gotowe do wprowadzenia – bez podatku PCC i z możliwością wystawienia faktury VAT!
 
Znajduje się na 1 piętrze w 5-piętrowym budynku z dużą, cichobieżną windą. Na każdym piętrze znajdują się jedynie trzy mieszkania, co gwarantuje spokój i prywatność.
 
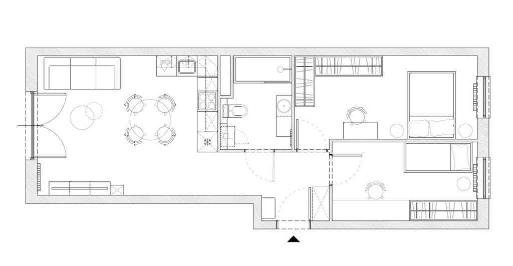
UKŁAD MIESZKANIA:
Przemyślany rozkład oraz dwustronna ekspozycja sprawiają, że mieszkanie jest jasne i słoneczne przez cały dzień:

  • Ustawny salon z aneksem kuchennym i wyjściem na balkon typu loggia (ekspozycja wschodnia),
  • Dwie niezależne sypialnie (zachodnia strona),
  • Łazienka z wanną, parawanem, umywalką z szafką, WC, instalacją pod pralkę i suszarkę oraz wbudowanym radiem,
  • Przestronny korytarz z miejscem na szafę wnękową.

W cenie mieszkania zawarta jest komórka lokatorska o powierzchni 2,80 m² (na poziomie -1) – idealna do przechowywania roweru, wózka czy rzeczy sezonowych.

Miejsca parkingowe dostępne pod blokiem.

Blok oddany do użytku w 2025 r. zarządzany przez Wspólnotę. Mieszkanie do tej pory nie zamieszkałe.
Czynsz wynosi ok. 500 zł. Dodatkowe opłaty to indywidualne zużycie prądu.
Stan prawny: mieszkanie własnościowe, z księgą wieczystą. 

STANDARD i WYPOSAŻENIE:
Mieszkanie zostało urządzone z dużą starannością i dbałością o szczegóły:
– nowoczesna kuchnia na wymiar wykonana przez stolarza wraz z nowym sprzętem AGD: lodówka AMICA, płyta indukcyjna z piekarnikiem AMICA, okap, zmywarka, 
– w salonie rozkładana kanapa, szafka RTV, stół z krzesłami, 
– na podłogach wysokiej jakości panele, ściany pokryte farbami odpornymi na ścieranie; w salonie tapeta na ścianie oraz ściana pokryta farbą, po której można pisać kredą, 
– okna plastikowe, drzwi wejściowe-antywłamaniowe.
W cenie mieszkania zawarte są meble kuchenne wraz ze sprzętem AGD (lodówka, piekarnik, płyta grzewcza, zmywarka, okap) oraz stół z krzesłami, szafka RTV i rozkładana kanapa w salonie. Pozostałe elementy wystroju widoczne na zdjęciach stanowią część aranżacji home staging i nie są przedmiotem sprzedaży – mają na celu pokazanie potencjału wnętrza po umeblowaniu.

LOKALIZACJA:
Nowoczesne osiedle Łężyca w szybko rozwijającej się części Zielonej Góry. Doskonałe połączenie z centrum miasta (ok. 10 min samochodem) oraz trasą S3. W pobliżu znajdują się sklepy (Biedronka, Dino, Aldi), punkty usługowe, żłobki, przedszkola, szkoły. Okolica cicha, zadbana i bezpieczna, z terenami zielonymi, nieopodal jest las, place zabaw i ścieżki spacerowe – idealna dla rodzin, par i osób ceniących spokój z wygodnym dostępem do miasta.
 
ATUTY:
– nowe, gotowe do wprowadzenia mieszkanie,
– brak podatku PCC 2%, możliwość wystawienia faktury VAT,
– funkcjonalny rozkład pomieszczeń: 2 osobne sypialnie i salon z aneksem kuchennym!
– balkon, komórka lokatorska,
– niski czynsz,
– mieszkanie wychodzi na stronę dwie strony świata, co sprawia, że jest bardzo jasne i ciepłe,
– 8 min. do centrum!
– przed blokiem miejsca parkingowe dla mieszkańców,
– przedszkole i szkoły na osiedlu,
– idealne dla pary, rodziny lub pod inwestycję,
– wysoki standard wykończenia – bez potrzeby remontu!

HOME STAGING: Magdalena Chalecka i Katsiaryna Kardash 
ZDJĘCIA: Katsiaryna Kardash 
PROJEKT MIESZKANIA: Magdalena Chalecka

 
Zadzwoń i umów się na indywidualną prezentację mieszkania! Jeśli będziesz potrzebował kredytu, sprawdzimy Twoją zdolność.
Współpracujemy z innymi biurami nieruchomości.

Szczegóły oferty:
Anna Suchowacka, nr licencji pośrednika PFRN 28271, tel. 669 269 216, SUCHOWACKA NIERUCHOMOŚCI, Zielona Góra

Dane szczegółowe

Rynek Pierwotny
Numer oferty 111/14248/OMS
Cena 633 000.00 PLN
Cena za m2 11 364.45 PLN/m2
Powierzchnia 55,7 m2
Liczba pokoi 3
Piętro 1
Liczba pięter 5
Rok budowy 2024
Czynsz administracyjny 500 PLN
Rodzaj budynku Biurowo-handlowy
Rodzaj ogrzewania CO miejskie
Komunikacja Autobus
Dodatkowe Winda    

Dostępne w okolicy

Las
Restauracja
Przedszkole
Szkoła
Zabudowa niska
Plac zabaw
Centrum handlowe
Przychodnia lekarska